想了解設備資料?報價?售后?請留言,速回電
廠家直銷,留言立享本月優惠價免費提供環保政策、辦廠手續、投資預算等資料

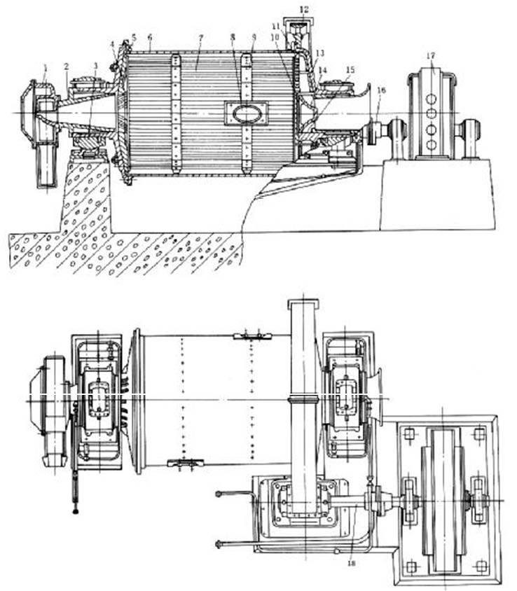
球磨機目前在市場上型號各異,每個產品的型號規格都不一樣,但是,盡管球磨機的種類繁多,但是內部結構和原理都是相同的。今天就拿格子型球磨機結構為例,如下圖1-7。

圖 1-7 格子型球磨機
1-給料器;2-進料管;3-主軸承;4-扇形襯板;
5-端蓋;6-筒體;7-筒體襯板;8-人孔;9-楔形壓條;
10-中心襯板;11-排料格子板;12-大齒圈;13-端蓋;
14-錐形體;15-楔鐵;16-彈性聯軸器;17-電動機;18-傳動軸
球磨機主要由圓柱形筒體、襯板、隔倉板(多倉磨機才具備)、主軸承、進出料裝置和傳動系統等部分組成。
筒體(包括主軸承,見下圖)

濕法球磨機的主軸承
1-軸承底盤;2-球面瓦座;3-定位銷;4-球面瓦;5-軸承蓋;6-螺釘
球磨機的筒體是球磨機主要工作部件之一。筒體工作時除承受研磨體的靜載荷外,還受到研磨體的沖擊,且筒體是回轉的,所以筒體上產生的是交變應力。因此,它必須具有足夠的強度和剛度。這就要求制造筒體的金屬材料的強度要高,塑性要好,具有較好的機械性能和工藝性能才能保證磨機筒體的安全運行。
一般用于制造筒體的材料是普通結構鋼,此種材料的強度、塑性、可焊性都能滿足要求,隨著工業的發展,磨機能力(產量)也向大型化發展,近來設計的大型磨機的筒體是用16Mn鋼制造的。其彈性強度限比Q235的高約50%,耐蝕能力比Q235高50%,沖擊韌性(尤其低溫時)比Q235高得多。而且16Mn還具有良好的切削加工性、可焊性、耐磨性和耐疲勞性。所以16Mn是一種相當適宜的鋼材。磨機運轉時與長期停止時筒體的長度是不一樣的。這是由于筒體溫度不同引起熱脹冷縮易導致球磨機筒體開裂。因此,在設計、安裝與維護時都必須考慮到筒體的這一熱脹冷縮特點。
一般磨機的卸料端靠近傳動裝置,為保證齒輪的正常嚙合,在卸料端是不允許有任何軸向竄動的,故都是在進料端有適應軸向熱變形的結構。
筒體的軸向熱變形在球磨機結構上有兩種考慮方法:一種是用中空軸頸的軸肩與軸承間的預留間隙(a、b)來考慮,如圖1-11所示。另一種是在軸承座與底板之間水平安裝數根鋼棍。

圖 1-11 球磨機筒體軸向熱變形的預留間隙
如圖1-12所示。當筒體熱脹冷縮時,進料端主軸承底座可沿輥子移動。

圖 1-12
筒體上每個倉都應開設一個磨門(又稱人孔)。磨門的作用是鑲換襯板、隔倉板,裝填或倒出研磨體及停磨檢查磨機倉內情況等。
球磨機的主軸承常用的是滑動軸承,其直徑很大,但長度很短,如圖1-10所示。軸瓦用巴氏合金澆鑄。與一般滑動軸承不同之處在于僅僅下半部有軸瓦。整個軸承除軸瓦用巴氏合金澆鑄外,其余都用鑄鐵制成。由于球磨機的跨度和載荷很大,將發生一定程度的撓曲,而且制造和裝配的誤差也難以保證準確的同軸度,因此,軸承制成自動調位型,球面瓦座2和球面瓦4之間以球心為旋轉中心能夠稍有相對移動,使作用于軸瓦上的載荷分布均勻。
球面瓦座2和球面瓦4之間還設有定位銷,以限制球面瓦移動的范圍。在安裝時,可以用螺釘6調整球面瓦座2的位置。也有用斜楔調整的。主軸承是球磨機的一個關鍵部件,對于其潤滑問題必須充分重視,一般都采用稀油集中循環潤滑,小型機也有的采用油環潤滑、油環滴油潤滑或毛線潤滑等方式。
球磨機價格詳細垂詢:0371-67772626
球磨機廠家地址:鄭州-國家高新技術產業開發區檀香路8號
上一篇:對輥破碎機的工作原理與結構
下一篇:雷蒙磨(雷蒙磨粉機)概述
想了解設備資料?報價?售后?請留言,速回電
廠家直銷,留言立享本月優惠價免費提供環保政策、辦廠手續、投資預算等資料
3分鐘前 高先生:時產200噸制砂機報個價,處理鵝卵石
8分鐘前 李先生:移動式破碎機怎么解決粉塵問題?
13分鐘前 徐女士:需要制砂機,南寧能看制砂現場嗎?
16分鐘前 程先生:破碎生產線出個方案及報價,有什么售后服務?
22分鐘前 鄭女士:想了解時產500噸錘破,加工石灰石
31分鐘前 吳先生:成套石頭破碎設備有嗎?給個詳細產品資料
36分鐘前 羅先生:每小時100噸左右的鄂破和反擊破,推薦下型號
42分鐘前 梁先生:膨潤土磨到200目,用什么磨粉設備?
提交留言我們會第一時間回復您!
水泥球磨機是水泥廠設備,水泥球磨機主要用于建材、冶金、電力及化工行業粉磨各種水泥熟料及其它物料。我公司可根據用戶需要的產量、細度要求設計制造符合用戶實際需要的水泥專用球磨機。
2018-05-11水煤漿作為一種液體燃料,便于燃燒、使用,其性質穩定且燃燒率達到98%以上,燃燒時排放量低、產品運輸方便,在醫院、學校、電廠、集中供電廠等領域有所應用。
2017-08-30市場上的球磨機品牌比較多,每個品牌下的實力水平、設備質量都是不同的,那么好的球磨機品牌是哪個呢?這是廣大消費關注的焦點問題,接下來就由紅星機器小編為大家對這一問題進行簡要闡述。
2017-05-09小型球磨機是廠家研制的一款規格比較小的磨礦設備,不僅體積大大縮小,重量也大大減輕,操控更加簡單容易,可移動到任何加工廠進行生產運行,具有產量高、運行效率高、成本低等性能優勢,頗受小規模加工廠的青睞與歡迎。
2017-03-06球磨機屬于選礦類設備,它的功能與作用就是對各種物料實現磨礦作業,隨著該設備應用范圍的不斷深入,它對物料種類的加工范圍也是越來越寬泛,包括金屬礦、非金屬礦以及黑色金屬等等,并且加工之后所呈現出的物料狀態都能達到客戶滿意的效果。節能型球磨機是針對能源方面的過度消耗而新研制的一種設備,它不僅工作效率高,并且在節能環保領域能凸顯該設備的具體優勢,從市場上的銷售量我們不難發現:該設備是功能性極強的設備,客戶對它的評價相當高,這也是該設備有如此高銷量的主要原因之一。
2016-07-28球磨機一般由筒體、端蓋、軸承和傳動大齒圈等部件組成。以下是紅星總結三種常見球磨機的工作原理,基本上都相似,其中有一些結構和磨礦方式等差異。
2009-07-11